Advanced Search
×

Advanced Search

Finding your caravan starts right here

Make:
Size:
Bedrooms:
Min Price:
Max Price:
Heating Type:
Double Glazed:
 
 

| Mon-Fri 9-4pm | Sat 10-3pm| Sun Closed |

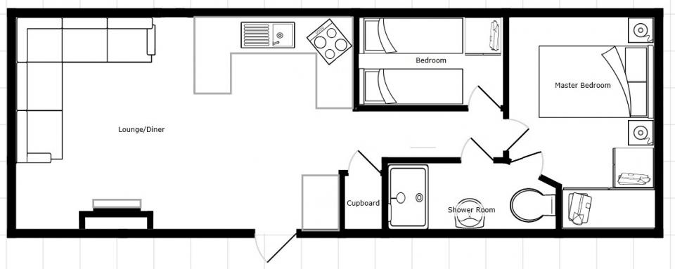
Willerby Salisbury 35x12ft 2 Bedrooms SC8949

£ 7,995

Picture Thumbnail 1
Picture Thumbnail 2 Picture Thumbnail 3 Picture Thumbnail 4 Picture Thumbnail 5 Picture Thumbnail 6 Picture Thumbnail 7 Picture Thumbnail 8
Click on a Thumbnail to Enlarge
Enquire About This Caravan

Call us now on 01206 255 223 or contact us below.

Name:
Email:
Telephone:

Description:


Key features:
Double glazing
Pitched roof
Apex ceiling
Large shower
New Carpet in the lounge and hall
New Lino in the kitchen and shower room

A 12ft wide 2 bedroom caravan. Double Glazed. The lounge has fixed seating, LPG gas fire, apex ceiling and new carpet. The dining area has room to put in your own furniture. Fitted kitchen with an LPG gas cooker, good storage and new lino. The shower room is fitted with a wash basin, toilet, large shower cubicle and new lino. One twin bedroom and one double bedroom. A good 2006 caravan.

Free Delivery within 50 miles
Delivery will be to the nearest accessible point with the lorry only.


Features: : Double Glazing

Make:

Willerby

Model:

Salisbury

Size:

35x12ft

SC Ref:

8949

Year:

2006

Bedrooms:

2

Sleeps:

4

Price:

£7,995

Floorplan:

View Willerby Salisbury 35x12ft 2 Bedrooms SC8949
Click Floorplan to Enlarge
Click on a Thumbnail to Enlarge