Advanced Search
×

Advanced Search

Finding your caravan starts right here

Make:
Size:
Bedrooms:
Min Price:
Max Price:
Heating Type:
Double Glazed:
 
 

| Mon-Fri 9-4pm | Sat 10-3pm | Sun Closed |

Delta Radiant 29x12ft 2 Bedrooms SC8837

£ 11,995

Picture Thumbnail 1
Picture Thumbnail 2 Picture Thumbnail 3 Picture Thumbnail 4 Picture Thumbnail 5 Picture Thumbnail 6 Picture Thumbnail 7 Picture Thumbnail 8
Click on a Thumbnail to Enlarge
Enquire About This Caravan

Call us now on 01206 255 223 or contact us below.

Name:
Email:
Telephone:

Description:


Key features:
LPG gas central heating
Double Glazed
Pitched roof
Apex ceiling

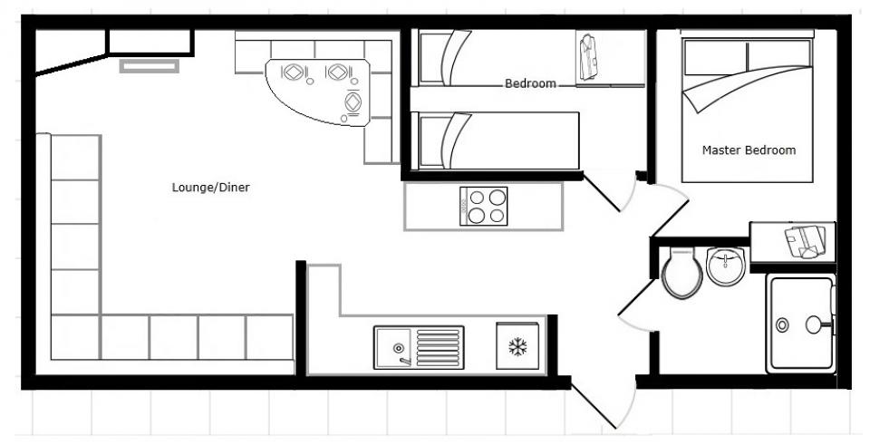
A 12ft wide 2 bedroom caravan. Double Glazed with LPG gas central heating. The lounge has fixed seating, apex ceiling and an electric fire. The dining area has fixed seating and a free standing table. Fitted kitchen with an LPG gas cooker. The shower room is fitted with a wash basin, toilet and standard shower cubicle. One twin bedroom and one double bedroom. A 2015 caravan.

Free Delivery within 50 miles
Delivery will be to the nearest accessible point with the lorry only.


Features: : Double Glazing

Make:

Delta

Model:

Radiant

Size:

29x12ft

SC Ref:

8837

Year:

2015

Bedrooms:

2

Sleeps:

4

Price:

£11,995

Floorplan:

View Delta Radiant  29x12ft 2 Bedrooms SC8837
Click Floorplan to Enlarge
Click on a Thumbnail to Enlarge